Napisz
Wiadomości
Sport
Pogoda
Ogłoszenia
Imprezy
Rykowisko
Sondy
Archiwum
Telefony alarmowe
Subskrypcja
Powiadom redakcję
Dodaj film, zdjęcia
Dodaj imprezę
Dodaj ogłoszenie
Dodaj artykuł
w dziale Rykowisko
Tragedie i dramaty
112
Nekrologi
Kultura
Policja Jelenia Góra
Głos ulicy
Edukacja
Jeleniogórskie ulice
Jelonka wczoraj
Kilometry
Kościół i wiara
Kryminał
Pieniądze
Pomagamy
Rozmowy Jelonki
Samorządy i polityka
Turystyka
Ciekawe miejsca
Seniorzy
Informacje z Regionu:
Jelenia Góra
Karpacz
Kowary
Piechowice
Szklarska Poręba
Janowice Wielkie
Jeżów Sudecki
Mysłakowice
Podgórzyn
Stara Kamienica
Dolny Śląsk
Karkonosze
Cieplice
Jakuszyce
Pilchowice
Bolków
Lwówek Śląski
Dziwiszów
Kaczorów
Kamienna Góra
Lubawka
Borowice
Gryfów Śląski
Harrachov
Jawor
Jędrzychowice
Karpniki
Krosno Odrzańskie
Łomnica
Przesieka
Śnieżka
Świeradów Zdrój
Zgorzelec
Polub Jelonkę:
Czytaj także:
Wałbrzych
Świdnica
romeo
Wystawa w Muzeum
Kabaret K2 w...
Bożena Gramsz
Szachowy Turniej
Marcin Daniec-...
Warsztaty Rodzinne
więcej »
(134)
Aktualności
Akty samookaleczenia w szkole. Interweniowali policjanci!
Muzeum Karkonoskie
100. rocznica urodzin Witolda Turkiewicza – Ze Skarbnicy Muzeum Karkonoskiego
Wiadomości z miasta
Dzielnicowi Straży Miejskiej zadbają o bezpieczeństwo w Jeleniej Górze
Aktualności
Jeleniogórzanin w Mam Talent!
Karkonosze
Również Elsa idzie na Śnieżkę?
Aktualności
Tłumy na spotkaniu z legendarnym bramkarzem
112
Nocna walka strażaków
Środa, 18 marca
Imieniny:
Boguchwały, Edwarda
11°
Czytających:
14892
Zalogowanych:
87
Niezalogowany
Rejestracja
|
Zaloguj
Aktualności
Region
Są zarzuty dla trzech byłych policjantów
23 września 2019
Jelenia Góra
Tak się nie robi!
23 września 2019
Jelenia Góra
Dali dobry przykład
22 września 2019
Powiat
Wizyta w Bambergu
22 września 2019
Janowice Wielkie
Seniorzy w akcji
22 września 2019
Stara Kamienica
Piknik Kasztelański
22 września 2019
Jelenia Góra
Pożar pustostanu
21 września 2019
Łomnica
Młodzieżowa drużyna OSP w Łomnicy
21 września 2019
Gruszków
Autobusy MZK nie jeżdżą do Gruszkowa, bo trwa remont drogi
21 września 2019
Jelenia Góra
Sentymentalna kolekcja "Watra wraca"
21 września 2019
Kowary
Rok inwestycji w kowarskiej podstawówce
21 września 2019
Piechowice
Rozbiórka wiaduktu
21 września 2019
Jelenia Góra
Młodzi wandale zostali ujęci
21 września 2019
Polska
Czy jesteś ojcem dziecka? Sprawdź za pomocą badania DNA
20 września 2019
Jelenia Góra
Windę wybuduje Castellum
20 września 2019
Jelenia Góra
Dla studentów pielęgniarstwa
20 września 2019
Jelenia Góra
Siedziba szkoły muzycznej po remoncie
20 września 2019
Karpacz
Nocna ewakuacja w Karpaczu
20 września 2019
Kowary
Wystawa zdjęć z Arktyki
20 września 2019
Mniszków
Nowy sołtys wsi w Rudawach
20 września 2019
Region
Wyniki regionalnego budżetu obywatelskiego
20 września 2019
Szklarska Poręba
Co z przetargiem na przebudowę dworca?
20 września 2019
Jelenia Góra
Rozbudowa SOSW rozpoczęta
19 września 2019
Jelenia Góra
Remont drogi Strużnica–Gruszków
19 września 2019
Jelenia Góra
Kolejna usterka na Złotniczej
19 września 2019
Jelenia Góra
Sybiracy w Książnicy Karkonoskiej
19 września 2019
Kowary
Zbiórka krwi w Kowarach
19 września 2019
Jelenia Góra
Tworzą grę karcianą
19 września 2019
Jelenia Góra
Areszt dla oszusta matrymonialnego
19 września 2019
Powiat
Zajęcia e–medyczne
19 września 2019
Karkonosze
Schronisko do remontu
19 września 2019
Jelenia Góra
Podsumowanie drogowego projektu
18 września 2019
Region
Wpadka z tytoniem bez akcyzy
18 września 2019
Jelenia Góra
Elektroniczny wykaz podatników VAT działa
18 września 2019
Jelenia Góra
Działki niszczy... świnka wietnamska
18 września 2019
Karpacz
Stop rakowi skóry
18 września 2019
Jelenia Góra
Współpraca z Huangshan
18 września 2019
Kowary
Muzeum szuka pamiątek po „dywanówce”
18 września 2019
Powiat
Jest szansa na miliony
18 września 2019
Jelenia Góra
Pożar auta przy rondzie
17 września 2019
Jelenia Góra
VIII Dolnośląskie Dożynki Rolników
17 września 2019
Jelenia Góra
Władze Term Cieplickich o konflikcie
17 września 2019
Jelenia Góra
Komunikacja miejska nas łączy
17 września 2019
Jelenia Góra
Warto zakisić nie tylko ogórki
17 września 2019
Kowary
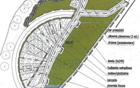
Fundamenty muszli koncertowej już gotowe
17 września 2019
Janowice Wielkie
Uczniowie dla janowickich Sybiraków
17 września 2019
Jelenia Góra
Przegląd inwestycji drogowych
16 września 2019
Jelenia Góra
Zajęcia dla małych i dużych w JCK – ruszyły zapisy
16 września 2019
Karkonosze
Akcja ratunkowa w Kotle Łomniczki
16 września 2019
Kowary
Jest wykonawca klubu seniora
16 września 2019
Jelenia Góra
Bracia Osipikowie na kolejnej wyprawie
16 września 2019
Jelenia Góra
Giełda pod Muzeum
16 września 2019
Jelenia Góra
"Czyste Powietrze" – nabór wniosków
16 września 2019
Kowary
Maszerowali dla WTZ
16 września 2019
Mysłakowice
Będzie bezpieczniej
16 września 2019
Jelenia Góra
Restauratorzy i konsumenci o jeleniogórskiej gastronomii
15 września 2019
Wleń
Dożynki gminne we Wleniu
15 września 2019
Region
Praktyki w Austrii dla dolnośląskich uczniów
15 września 2019
Jelenia Góra
Szlakiem Bernatta
15 września 2019
Świeradów Zdrój
Oryginalne bilety do Czarciego Młyna
15 września 2019
Polska
Jak przedstawiają się warunki konsolidacji kredytu w 2019 roku?
14 września 2019
Region
Ogólnopolski Rajd Granica 2019 trwa w najlepsze!
14 września 2019
Podgórzyn
Wyprawka dla małych czytelników
14 września 2019
Jelenia Góra
Cenny dar dla niedowidzących
14 września 2019
Region
KSON: Góry otwarte dla wszystkich
14 września 2019
Szklarska Poręba
Woda z kranów już czysta
14 września 2019
Region
Leśna edukacja
14 września 2019
Jelenia Góra
Kondycja miejskich finansów
13 września 2019
Jelenia Góra
Trwa nabór wniosków!
13 września 2019
Karpacz
Nowy stadion dla lekkoatletów
13 września 2019
Jelenia Góra
Akcja przy Kiepury
13 września 2019
Janowice Wielkie
Kiermasz książek w wiejskiej świetlicy
13 września 2019
Powiat
Nowa rada ds. osób niepełnosprawnych
13 września 2019
Kowary
Montują nowe "zebry"
13 września 2019
Jelenia Góra
Mirsk pięknieje
12 września 2019
Jelenia Góra
MZK: Obiecujące testy ekologicznego autobusu
12 września 2019
Region
Jeleniogórzanie na zlocie DTMZ
12 września 2019
Szklarska Poręba
Problemy z wodą pod Szrenicą
12 września 2019
Jelenia Góra
Jesienna wymiana ciuchów w "Muflonie"
12 września 2019
Wojanów
Gminne Dożynki w Wojanowie
12 września 2019
Kowary
Ostrożnie podczas wędrówki na Okraj
12 września 2019
Powiat
Warsztaty językowe dla służb kryzysowych
12 września 2019
Region
Umowa na nowe karetki
12 września 2019
Jelenia Góra
Kierowcy, zmiana organizacji ruchu!
11 września 2019
Polska
Kredyt czy karta kredytowa. Co się bardziej opłaca?
11 września 2019
Polska
Nadaj paczkę w paczkomacie
11 września 2019
Jelenia Góra
Uwaga – pojedziemy inaczej
11 września 2019
Region
Jeleniogórscy policjanci na podium
11 września 2019
Jelenia Góra
Atak na bukszpany
11 września 2019
Polska
Przesyłka za duża, żeby wysłać ją kurierem? Jest na to sposób
11 września 2019
Strona:
Poprzednia
1
...
260
261
262
263
264
z 697
Następna
Wiadomości
Samorządy i polityka
Sport
112
Kultura
Edukacja
Aktualności
Ciekawe miejsca
Czechy
Głos ulicy
Jelonka wczoraj
Karkonosze
Kilometry
Kościół i wiara
Kryminał
Nekrologi
Rozmowy Jelonki
Temat dnia
Jelonka.com
Portal miasta Jeleniej Góry
i Kotliny Jeleniogórskiej
Subskrypcja
Strona główna
Wiadomości
Sport
Pogoda
Ogłoszenia
Dodaj ogłoszenie
Imprezy
Dodaj swoją imprezę
Fotogalerie
Rykowisko
Sondy
Archiwum
Gazeta
Regulamin wypowiedzi
Polityka prywatności
Redakcja
Reklama
Cennik reklam
Telefony alarmowe
Subskrypcja
Logo
Portale regionalne
Jelenia Góra: Jelonka.com
Wałbrzych: Wałbrzyszek.com
Świdnica: Świdniczka.com
Copyright © 2002-2026
Highlander's Group